Apartment building
2017–2022
New construction
30,753 sqm
In a peripheral location, flanked by high-rise buildings, a multi-storey carpark and a noise protection
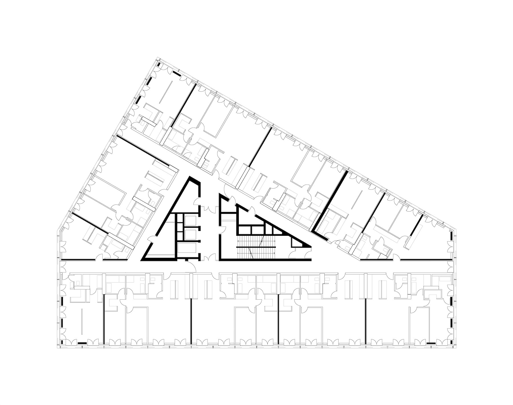
wall, the last remaining vacant site on the Donauplatte had an awkward angular shape that offered
little incentive to develop it. In fact, for a long time there were doubts about whether building on this
unattractive site made any sense at all.
The irregular shape of the design is nor derived from the context of the surrounding buildings alone
but also from the two hours of shade that result from the height and shape of the building in relation
to its neighbours.
The height of the new block is determined by a permitted building volume that had not yet been
exploited in the context of the overall development of the Donauplatte and could therefore be used
in the design of the DC Flats.
The new building offers a mix of apartments of different sizes, ranging between 45 and 90 square
metres. As one moves upwards from floor to floor the size of the apartments increases. Beneath the
residential floors there is a three-storey carpark building that provides the number of carparking
spaces required by the housing regulations and is connected to the existing carpark buildings. In fact,
the carparking storeys can be understood as a plinth for the new apartment block.
The load-bearing structure is placed along the facade and the central core of the building.
Consequently, the individual floor levels are mostly free of any structural elements, which means
that any future wishes to alter the layout of the flats can be easily met. The activation of building
components does not conflict with this.
The wish for a flexible layout of spaces is also met by the modular concept of the building envelope.
The sum of the modular facade elements forms the building envelope along the pentagonal building
volume. Each individual element includes a French window that guarantees sufficient daylight even
in the smaller apartments. Sliding shutters positioned in front of the façade plane allow the amount
of light entering the apartments to be controlled and thus meet the need for protection from strong
sunlight and glare, while also serving as black-out blinds at certain times of the day.
The individual use of the sliding shutters not only gives the façade an appearance that depicts the
social life in the building, but the irregular pattern also contrasts with the basic structure of the
facade geometry. The ever-changing facade offers a new look every day, which through the dynamics
of the respective use shapes the character of the DC Flats as registered from outside in a new and
unrepeatable way.




































































