Theatre
2016–2017
Redevelopment + Extension
3,040 sqm
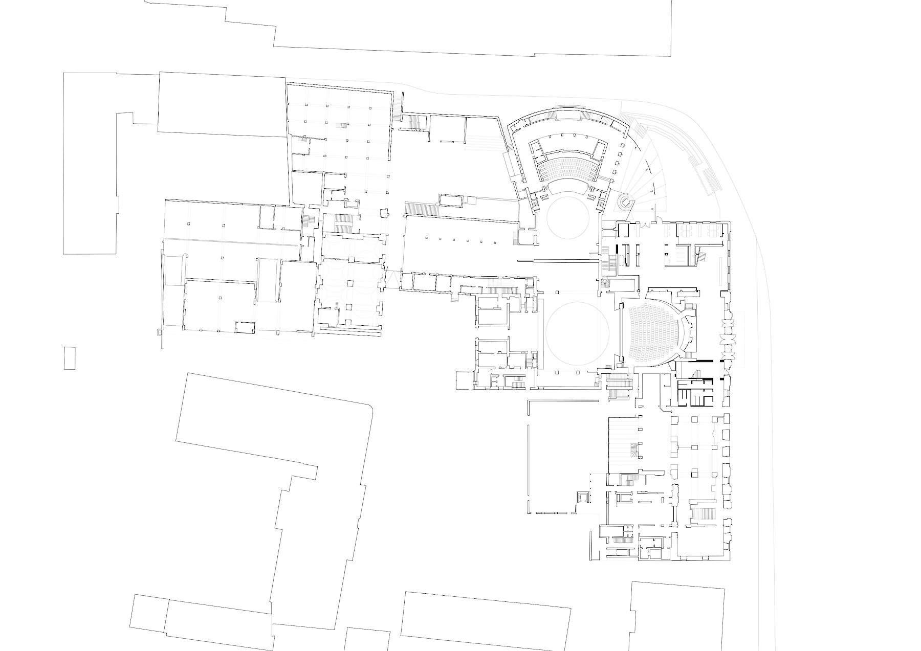
Between 1801 and 1803 the Ballhaus in Linz, which had been built from 1695-1697 to plans by Carlo Antonio Carlone and in which the Redoutensaal had been later inserted, was extended by adding a theatre based on the model of the Schikaneder Theatre in Vienna. Between 1953 and 1958 the Linz theatre was converted to plans by Clemens Holzmeister from a box theatre into a modern theatre with galleries and with the requisite foyers and lobbies for use during intermissions.
The current renovation of the Schauspielhaus theatre consists of measures based on the architectural concept of Holzmeister’s conversion, which emphasise its qualities and, together with the new interventions, create a coherent appearance.
To achieve better visibility of the stage and to improve the acoustics and ventilation of the auditorium obsolete stage technology and acoustic fittings were removed and the number of seats and standing room places was reduced from 669 + 130 to 501 + 31. The distance between the rows of seats and the incline were improved, the lighting technology was concentrated, and a bass trap was fitted, as the theatre is now used primarily to stage plays.
The three-storey public foyer and intermission areas in front of the auditorium are connected by an open staircase. They were adapted to the newly defined size of the auditorium by removing later additions, were equipped with cash desks, a shop, bar and lounge areas as well as the necessary ancillary spaces, and were designed to be free of barriers.
The escape stairs between the Schauspielhaus and Redoutensaal, which no longer met current requirements, was renovated at this spatially sensitive position and given a direct exit to outdoors.
Above the three main entrances facing the promenade a canopy roof appropriate to this location and function replaces earlier small glass canopies. Beneath it the canopy creates a protected meeting place in front of the theatre, while through its size, signage and lighting it defines the theatre’s presence in public space.










































































