Exhibition rooms, studios, artists in residence
Redevelopment + Extension
4,700 sqm
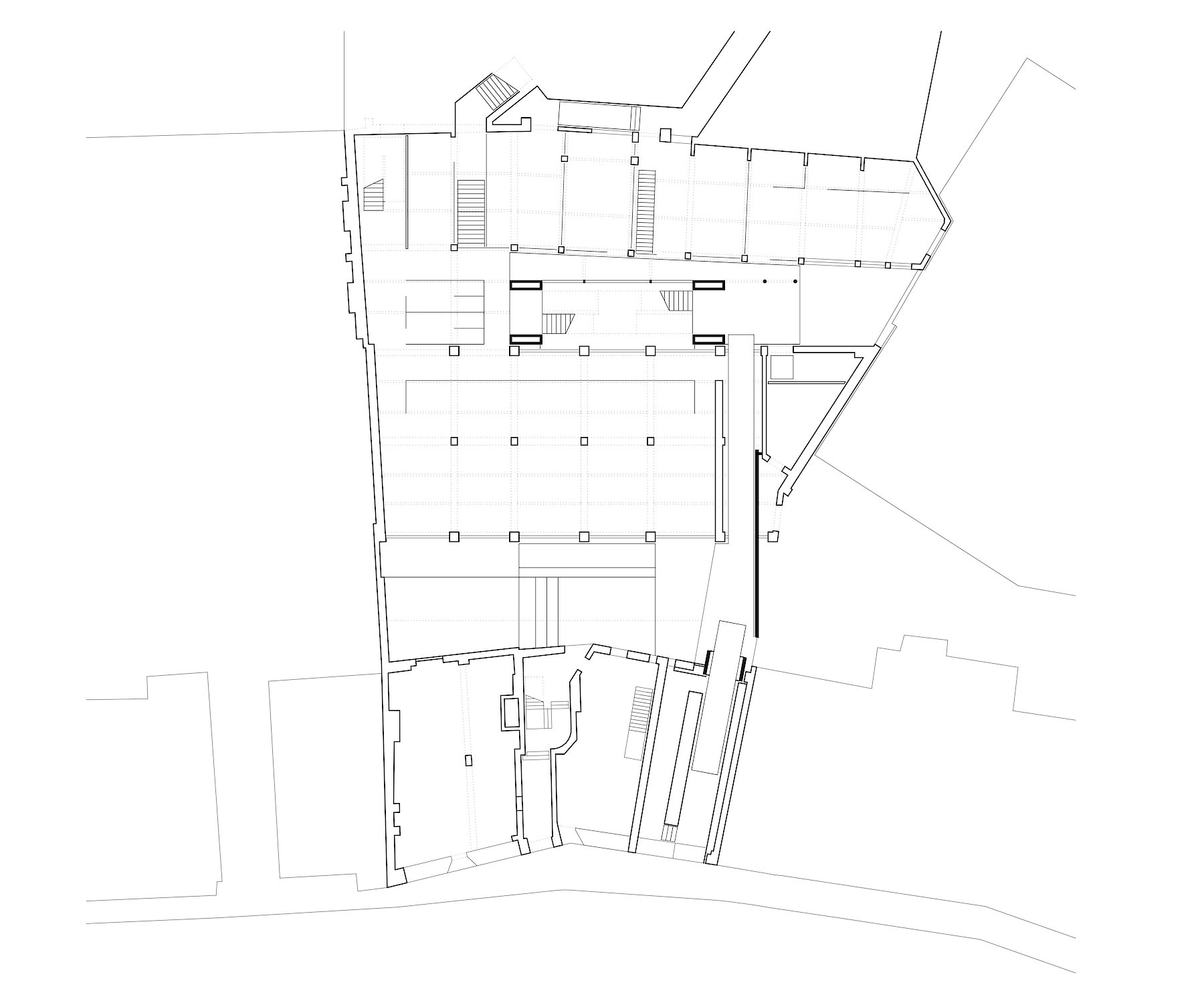
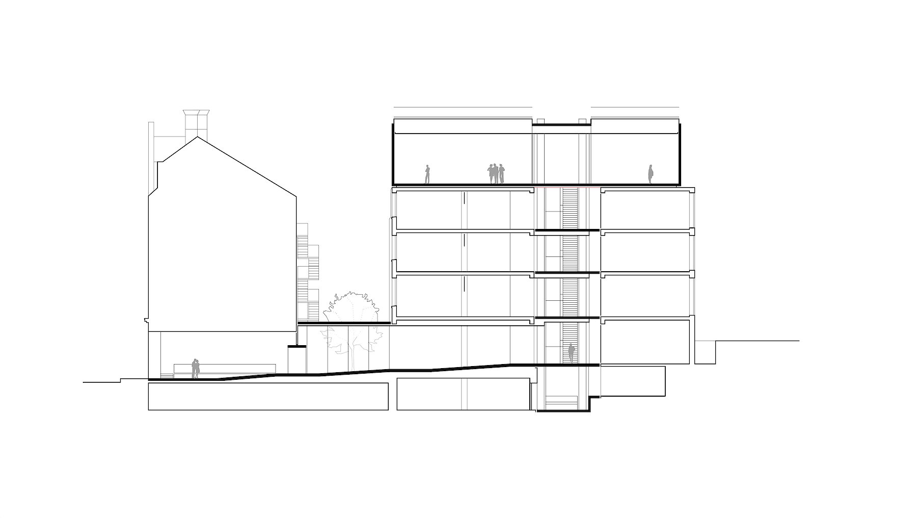
The Waygood Gallery is housed in a listed industrial building located behind a nineteenth-century residential building on High Bridge Street in Newcastle’s historical centre. The challenge here was to integrate new exhibition rooms and artists’ studios into the historical context.
A new street-side entrance will be established on the ground floor of the residential building.
To avoid substantial changes to the historical fabric, the access and utility supply lines will be located in the factory’s internal courtyard, providing a convenient link between the studio and exhibition levels. Added as an extra floor on top of the old building, the exhibition level will form a striking new element in the city skyline.
The top-lit exhibition rooms are free of supporting columns. In the staircase narrow strips of skylighting provide daylight illumination.













































