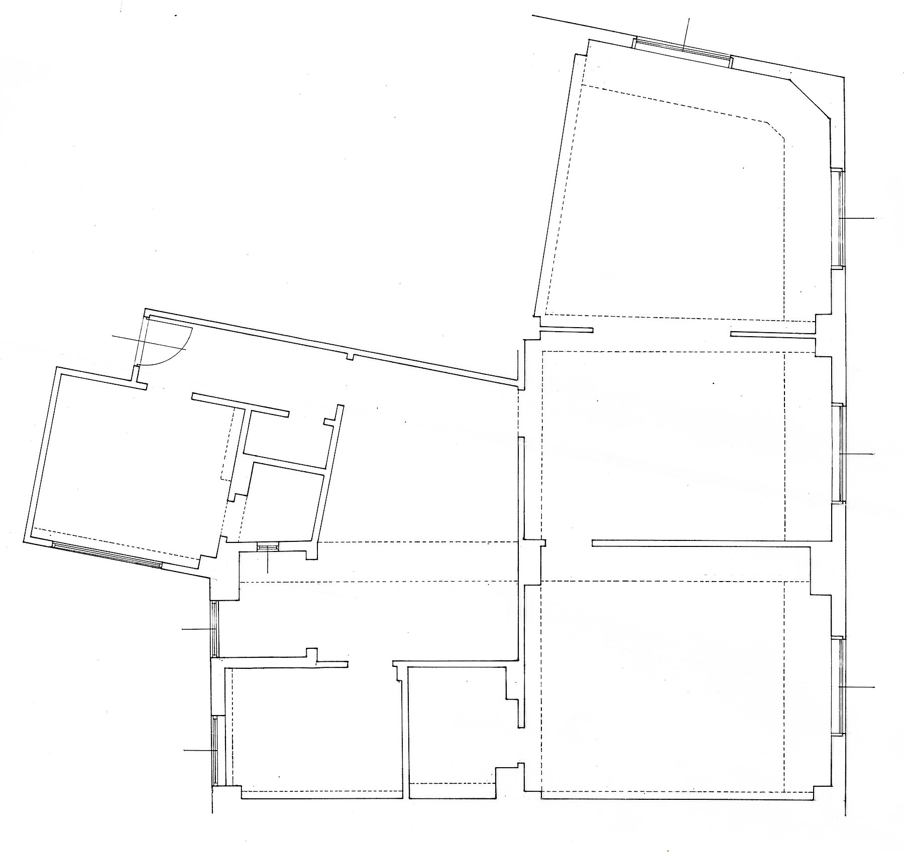
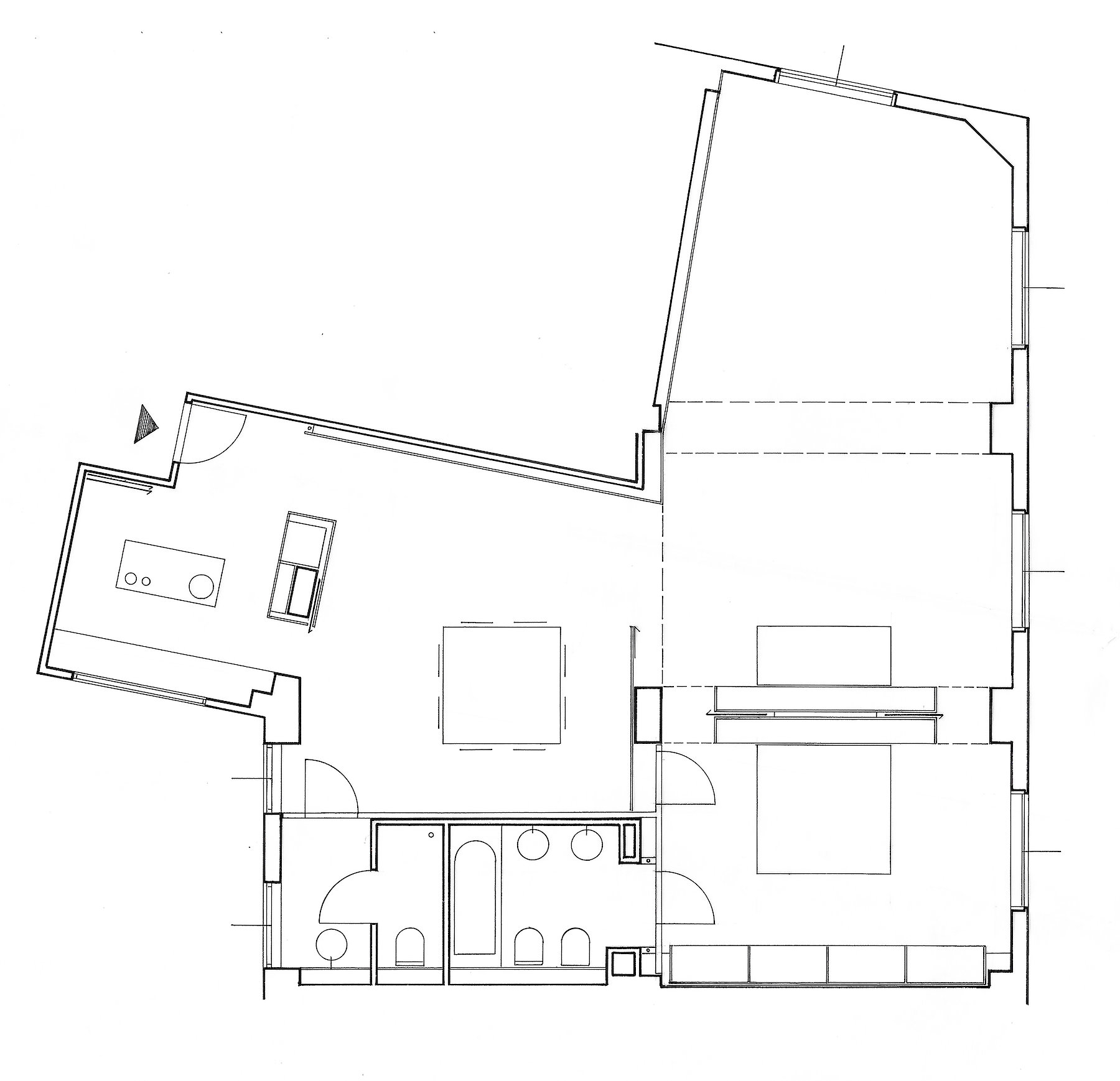
Apartment
1995–2002
Redevelopment
216 sqm
All the existing partition walls in this apartment in the high-rise residential building on Herrengasse were to be removed to create a more generous spatial impression within the original load-bearing structure dating from the 1930s.
In the areas created in this way the built-in fittings needed were organised in such a way that there is a view across the roofs of the historic city centre from as many points as possible in the apartment. The new elements that divide the space, which from the start had the character of pieces of furniture, can be separated by “disappearing” sliding doors, which can be used to break the apartment up into individual rooms if required, allowing the spatial feeling to be suited to any specific occasion. The aim was to strengthen the overall spatial effect further by using just two materials: wood and aluminium. To repeat the flat, uninterrupted impression made by the wooden floor but using a different material the uniform aluminium panels are arranged regularly, employing sheets of the same dimensions. They have no visible hardware and offer no indication of the function of the space behind. These abstract aluminium surfaces also scatter the light – much like a reflector – into the depth of the apartment, provide a contrast and become a functional background for every form of directed light. In this way the contrast between the new materials is repeated in the form of two different, constantly present qualities of light.






























































