Wohnhochhaus
2017–2022
Neubau
30.753 m²
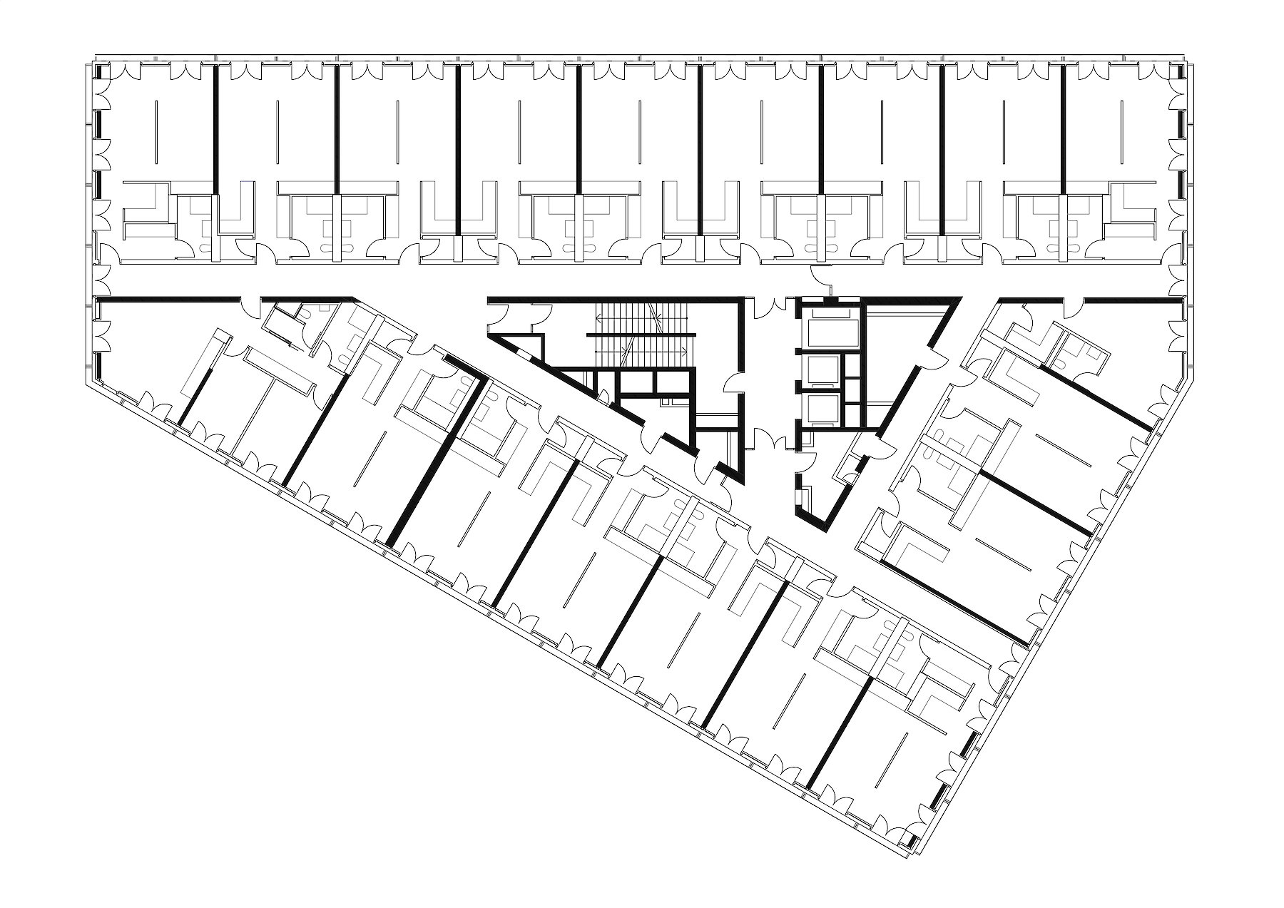
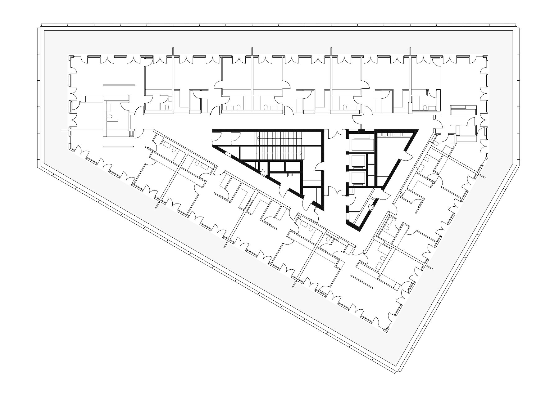
Das Wohnhochhaus auf der Donauplatte in Wien besetzt ein Baufeld, dessen Zuschnitt das Ergebnis eines 24h Stunden Schattenwurfes der benachbarten Hochhäuser darstellt.
Innerhalb der unregelmäßigen Kontur dieser Grundstücksfläche waren Kleinwohnungen anzuordnen, die vor allem den Bedarf der angrenzenden UNO City abdecken sollen.
Die modulare Struktur der Fassade wird von einem Fassadenelement bestimmt, das nicht nur die Fensteröffnung, sondern auch Schiebeläden aufnimmt, die jeweils die Funktion des Blend- oder Sonnenschutzes übernehmen. Der individuelle Gebrauch der Schiebeläden zeichnet verantwortlich für ein äußerst differenziertes Fassadenbild innerhalb einer sehr regelmäßigen Fassadengliederung.





















