Wohnbau und Gewerbe
 
2018
 
Umbau + Erweiterung + Studie
 
9.600 m²
Das Projekt einer Großbäckerei für die Wiener Arbeiter nimmt seinen Anfang 1900 und wird mit den Hammerbrotwerken 1909 auf den Gründen der ehemaligen Jesuitenmühle in Schwechat Realität.
Referenz für dieses Bauvorhaben war die Großbäckerei Vooruit in der belgischen Stadt Gent, die, nach einem genossenschaftlichen Modell organisiert, 1906 errichtet wurde.
Die ebenfalls genossenschaftlich organisierte Hammerbrotfabrik verarbeitete von Beginn an innerhalb von 24h eine Quantität von 100.000 kg Mehl zu Brot, das von Schwechat aus die Stadt Wien zu einem sehr erheblichen Teil versorgte. Um diese Kapazitäten überhaupt räumlich und logistisch bewältigen zu können, war eine Produktionsstätte von entsprechender Größe erforderlich, die von den Brüdern Hubert und Franz Gessner geplant wurde.
Der Betrieb der Großbäckerei wurde 1972 geschlossen und das Werksareal anschließend verkauft. In den folgenden Jahren verwahrloste die Industrieanlage zunehmend, und weist heute in Teilbereichen einen ruinösen Zustand aus.
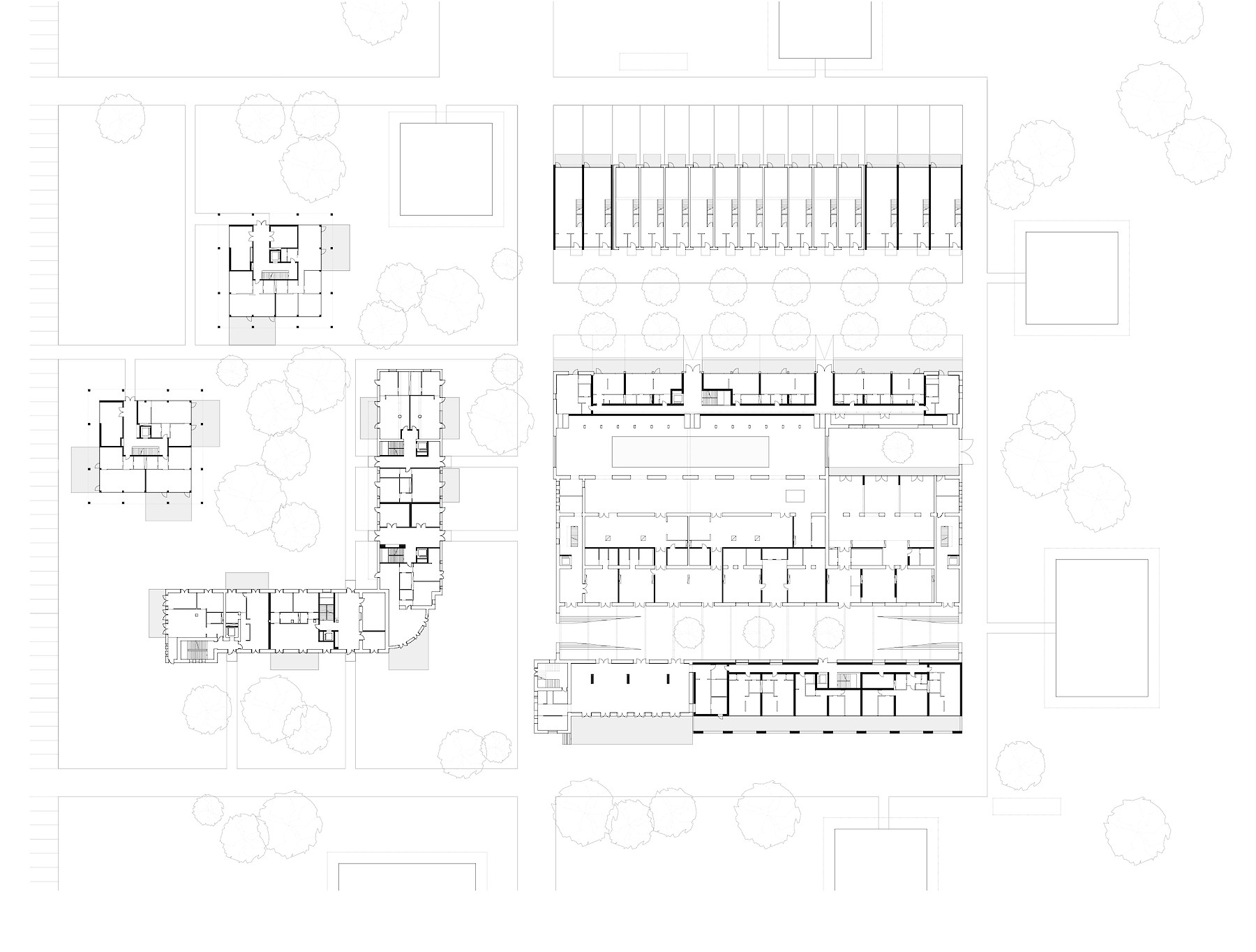
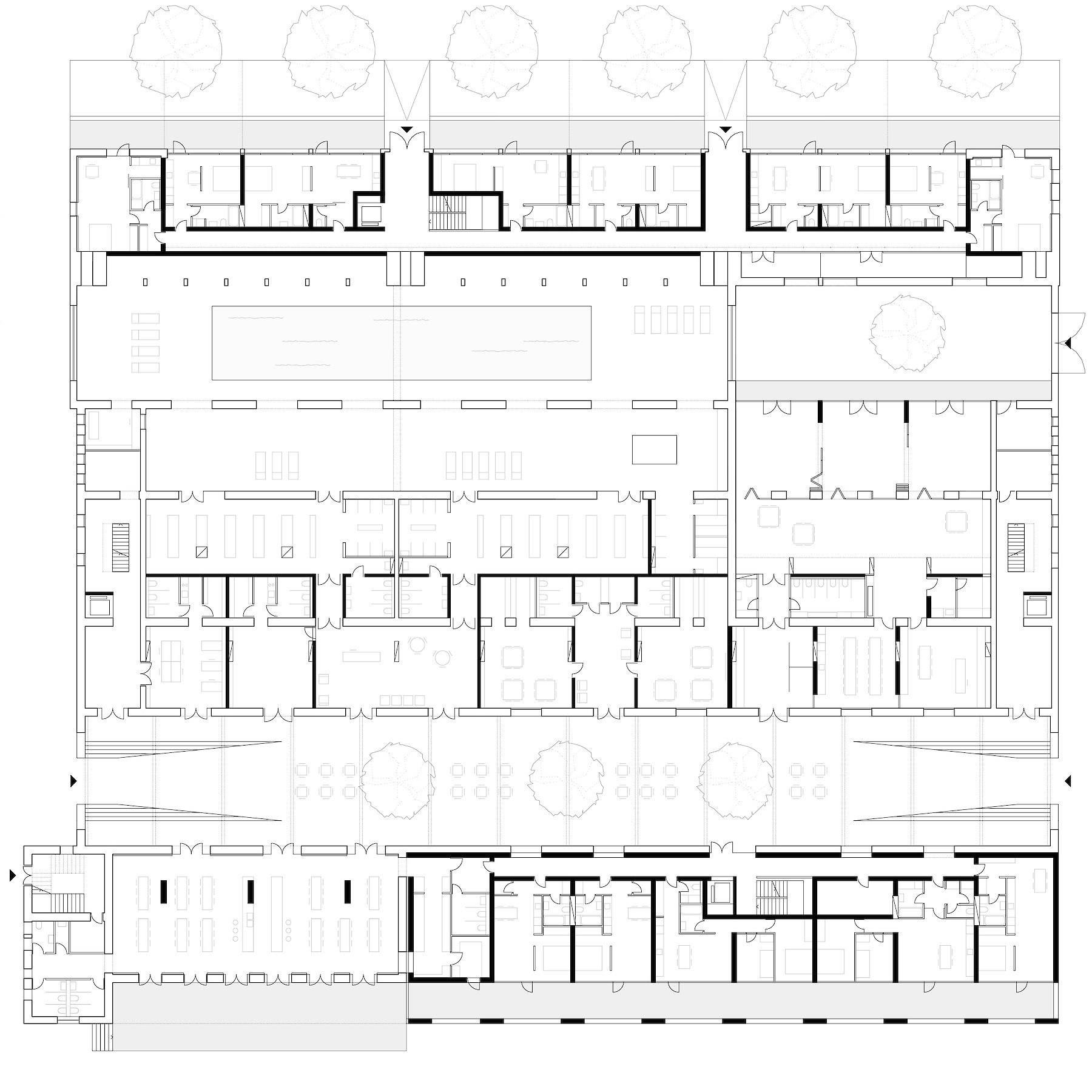
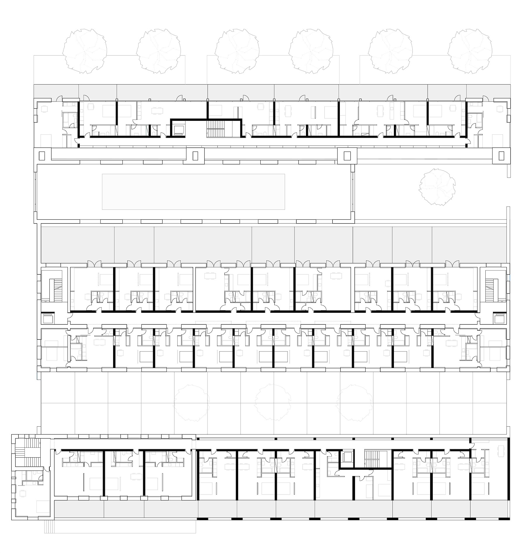
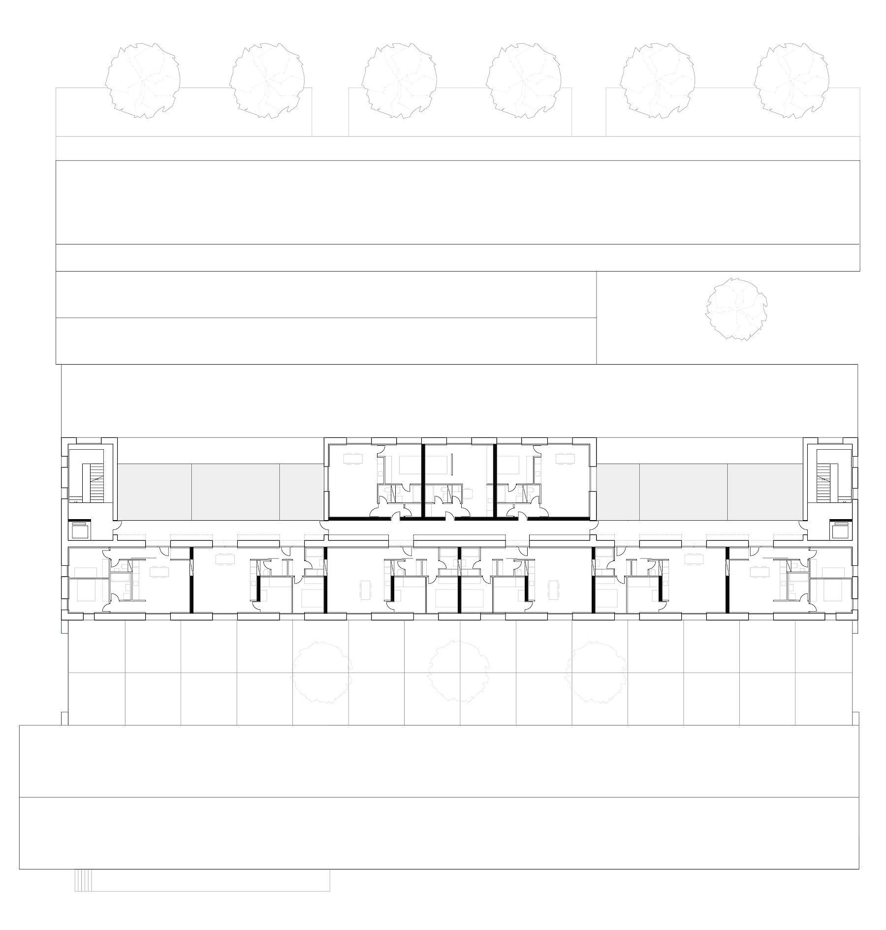
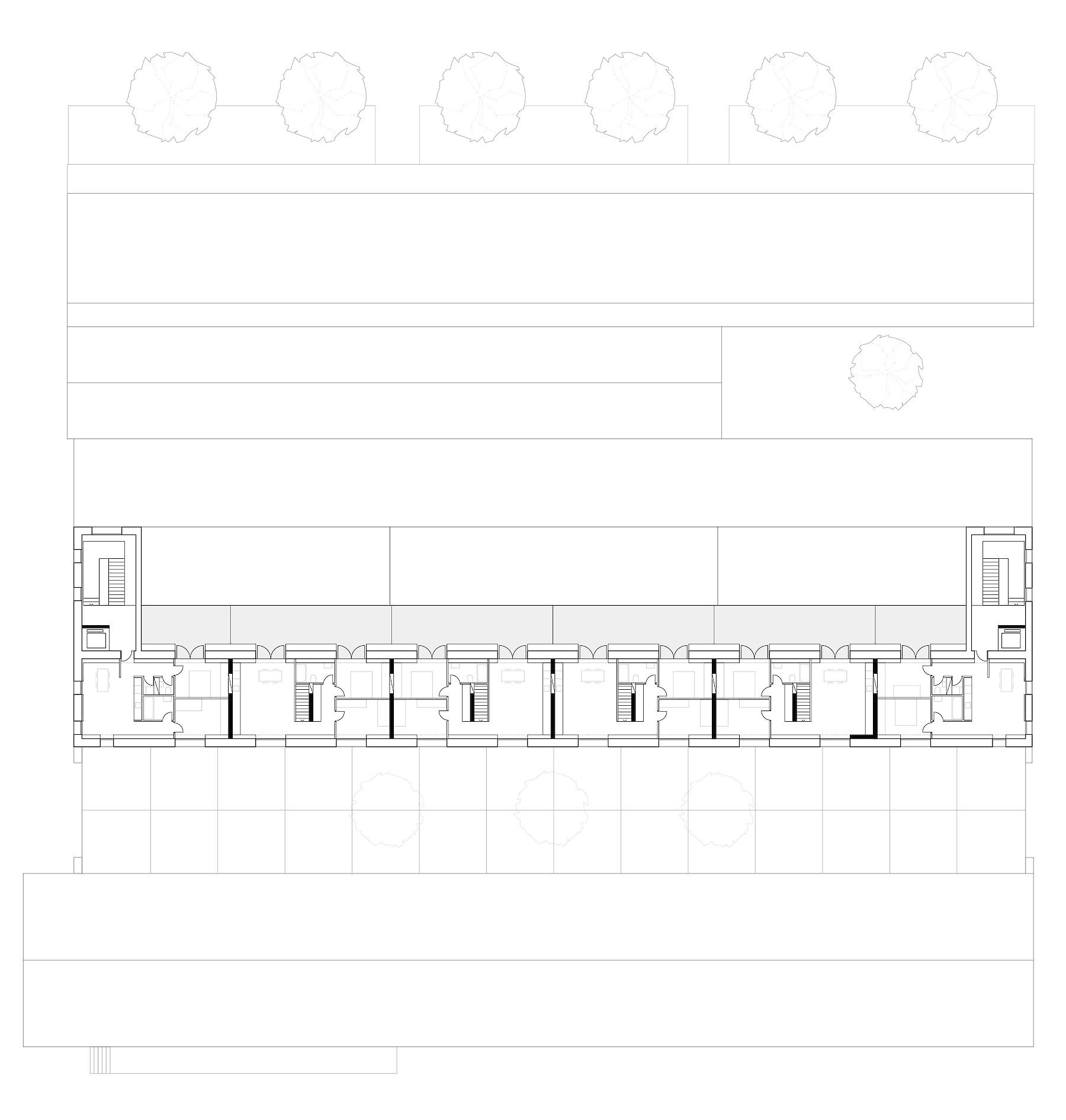
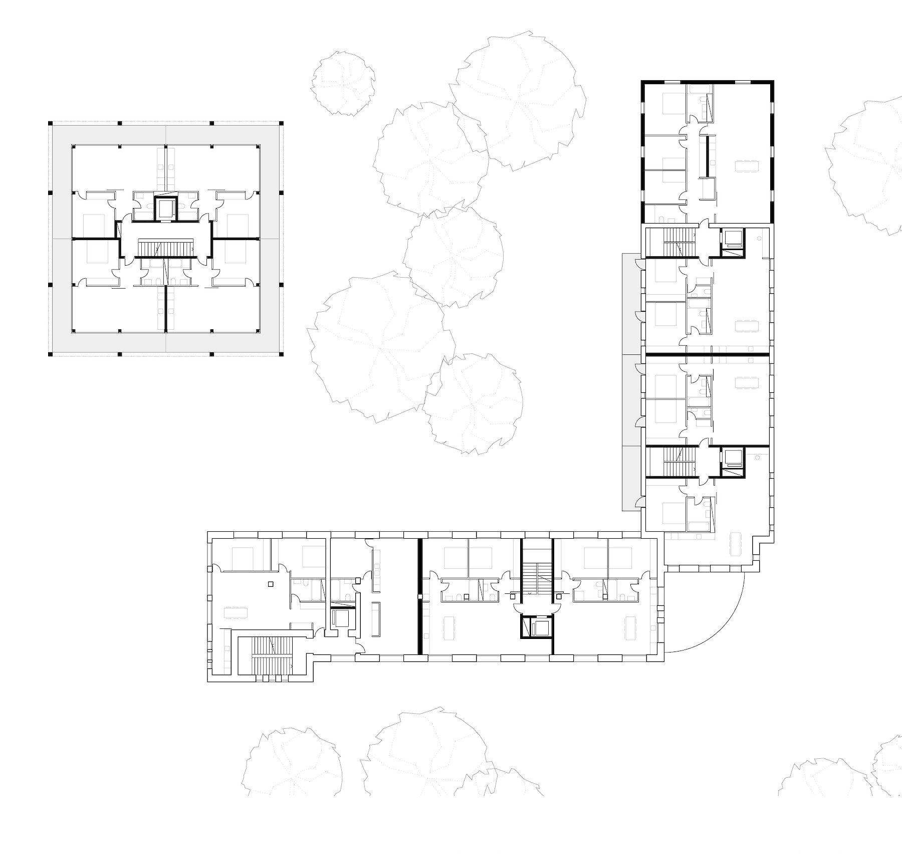
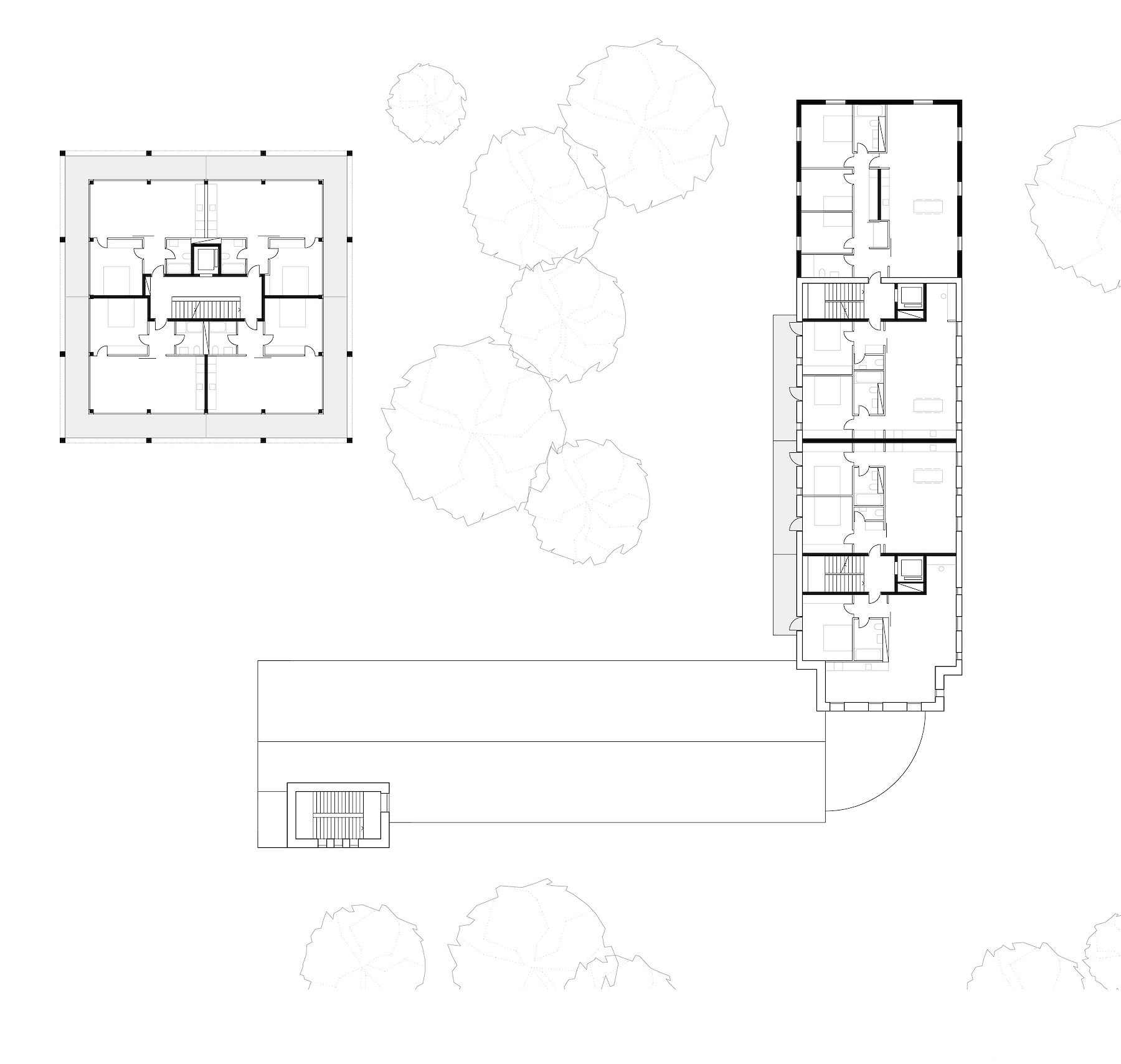
Mit einem neuerlichen Besitzerwechsel 2018 ist eine Umnutzung des historischen Bauensembles geplant, die sich aus Wohnbau, Gastronomie- und Gewerbeflächen zusammensetzen wird. Das ehemalige Betriebsgelände der Hammerbrotwerke mit seinem umfangreichen Baumbestand wird als verkehrsfreier Stadtraum zum Park inmitten eines neuen Viertels.






















































