Wohnhaus
2013–2016
Neubau
600 m²
In der hügeligen Landschaft der Prekmurje im Norden Sloweniens orientiert sich das Haus v.d.K. entlang des Geländeverlaufes mit seiner gesamten Gebäudelänge in Richtung Südwesten. Die ehemalige Bebauung an diesem Standort hinterlässt als Spur einen topographischen Einschnitt durch den Geländeverlauf, der in das neue Projekt aufgenommen wurde und in dieser Form die Anordnung des Baukörpers innerhalb der Grundstücksfläche mitbestimmt. Wo das Gebäude nicht unmittelbar an den Naturraum anschließt, bilden Nutzbauten eine räumliche Abgrenzung gegenüber der angrenzenden Nachbarschaft, die sich wiederum mit den gleichen baulichen Mitteln von ihrer Umgebung absetzt. Auf diese Weise besteht der traditionelle Versuch im Rahmen einer losen Bebauungsstruktur ein Maß an Privatheit gegenüber dem Umfeld zu etablieren.
Das Haus v.d.K. verfügt damit über sehr unterschiedliche Außenräume, die von einem Innenhof, einer Veranda zu Loggien reichen. Den unterschiedlichen Himmelsrichtungen verpflichtet, bieten diese Bereiche über den gesamten Tagesverlauf unterschiedlichste Aufenthaltsqualitäten an, die mit dem weit auskragenden Dach noch einen zusätzlichen Witterungsschutz erfahren.
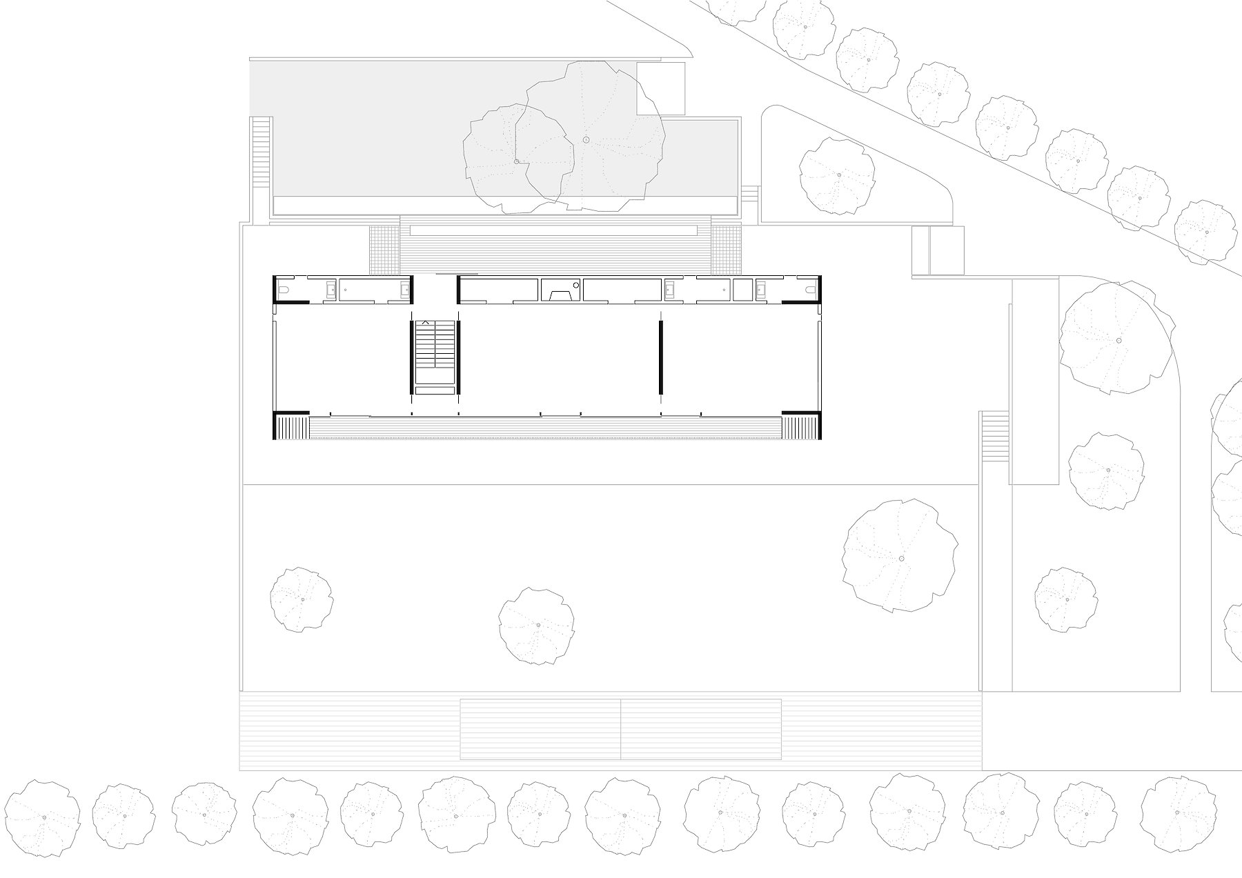
Mit der Anordnung des Gebäudes auf der Grundstücksfläche entsteht zwischen dem Gebäude und der Geländestützwand ein Eingangsflur, der als klimatischer Pufferraum zu verstehen ist, der mit seiner Speicherkapazität das Klima im eigentlichen Gebäude in passiver Form mitbestimmt. Das linear entlang der Betonspeicherwand ausgerichtete Oberlicht ermöglicht einen zusätzlichen Sonneneintrag in Ost-West-Orientierung, der für eine temporäre Erwärmung der Wandoberfläche einen Beitrag leisten kann und darüber hinaus für einen dosierten Tageslichteintrag in den Übergangsbereich sorgt.
Das Programm für das Haus verlangte nach einem hohen Maß an Flexibilität, mit Räumen weitgehend ohne funktionale Prägung, die variable Nutzungsmöglichkeiten zwischen Wohn- und Arbeitsbereichen zulassen und damit innerhalb der Struktur auch beliebig angeordnet werden können. Eine Entlastung des Grundrisses erfolgt mit einem vertikalen Körper, der über beide Geschoße sämtliche Funktionsbereiche aufnimmt und gemeinsam mit der Treppe die Gliederung innerhalb des Gebäudes in ihrer räumlichen Offenheit, wie auch ihren möglichen Formen der Verfügbarkeit wesentlich bestimmt. Zwischen den Aufenthaltsräumen wird der Übergang ausschließlich mit Schiebetüren eingelöst, die sich mit ihrer Mechanik im geöffneten Zustand gänzlich der Wahrnehmung entziehen, um damit der Vorstellung von einer variabel veränderbaren Raumstruktur auch im Detailbereich entgegenzukommen.
Zum Untergrund bildet eine Betonplatte, zum Hang eine Betonstützwand den Hintergrund, der die Holzkonstruktion des Gebäudes aufnimmt. Die lokalen Baubestimmungen im Landschaftsschutzgebiet forderten ein Satteldach mit geradem Firstverlauf, das aber für dieses Projekt nicht die einzige Referenz zur lokalen Bautradition darstellt, sondern auch in der Fassade ihre Übersetzung in die Gegenwart erfährt. Die Fassadenelemente bestehen aus Teilen gleicher Bauweise, die, entweder fix oder mobil, die Wandelbarkeit der Fassade regeln. Das auskragende Dach kann hier auch als erheblicher Schutz für die Fassadenstruktur gegen Witterungseinflüsse verstanden werden.
Als Sonnen- oder Sichtschutz bestimmen die Fassadenelemente wiederum wesentlich die Beziehung in den Außenraum, der mit seinem Panorama zur erheblichen Präsenz für den Innenraum werden kann und soll.
Die Deckung des Satteldaches erfolgt mit Dachziegeln, einem in der Region sehr gebräuchlichen, wie auch präsenten Material. Als sichtbares Muster bildet sich diese Form der Dachdeckung damit auch charakteristisch in der gesamten Hügellandschaft der Region weithin sichtbar ab.
In sämtlichen Maßstäben liefert das Haus v.d.K. eigenständige bauliche, aber auch räumliche Lösungen, die sich nicht nur auf eine lokale Baukultur beziehen, sondern diese vor allem mit den Mitteln der Gegenwart fortschreiben und so auch neu interpretieren.


























































































