Wohnhaus
2018
Umbau + Erweiterung
220 m²
Die im 14. Pariser Bezirk gelegene Privatstraße wird von zwei Häusern abgeschlossen, die, um einen kleinen Vorplatz gruppiert, den Abschluss dieses Stadtraumes formen. Beide Bauten erfuhren im Laufe der letzten Jahrzehnte Zubauten, die zum Teil auch eine Überformung des historischen Bestandes bewirkten.
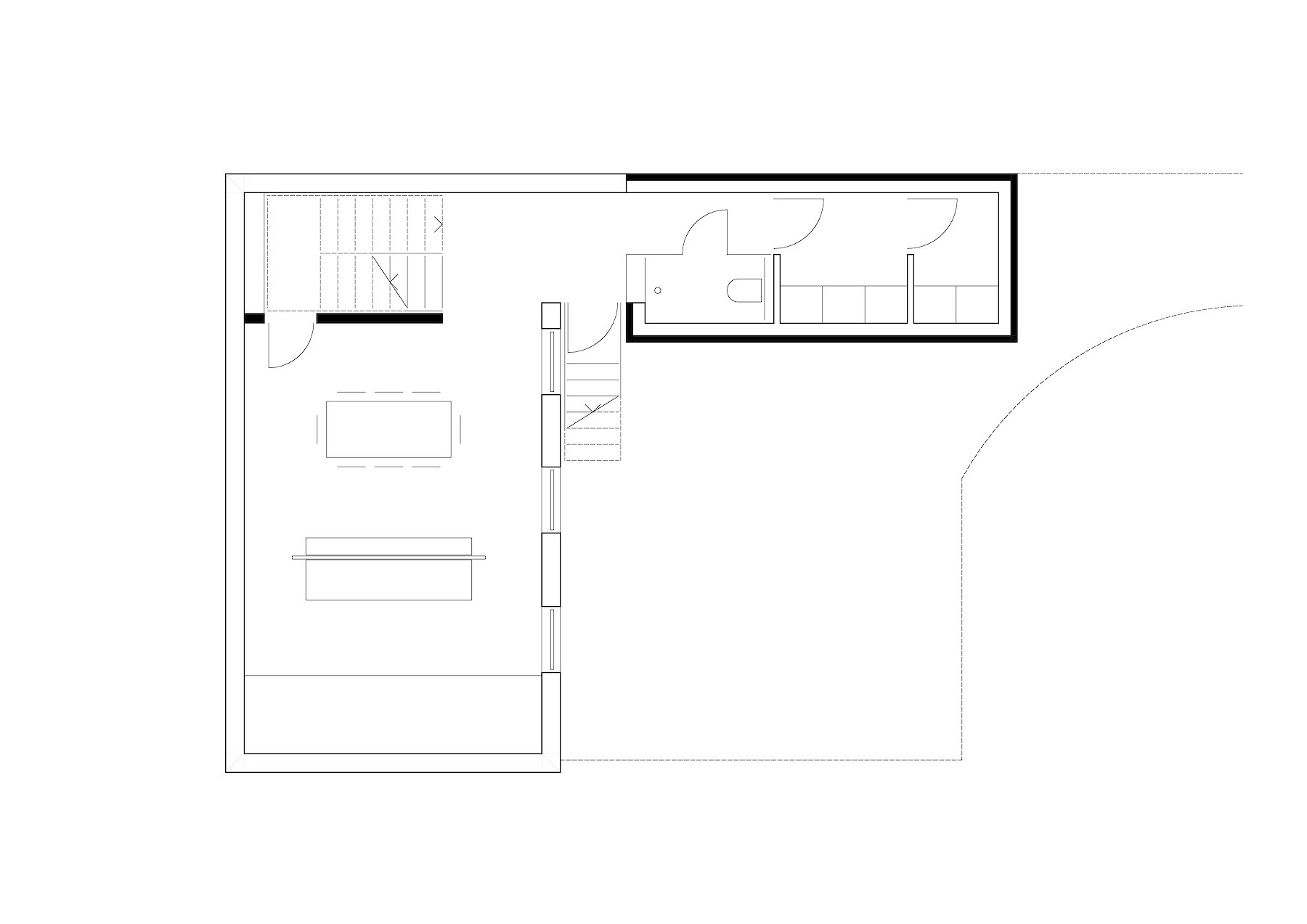
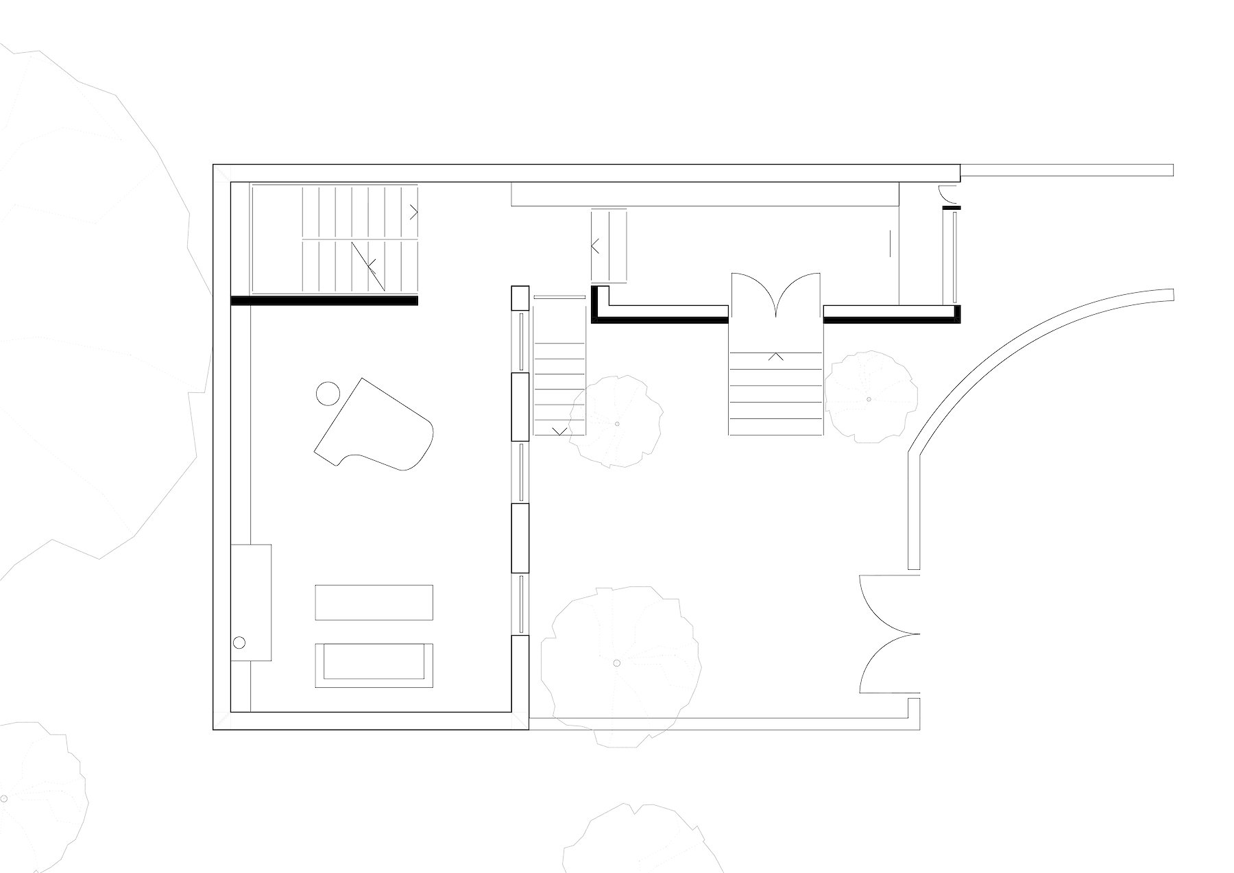
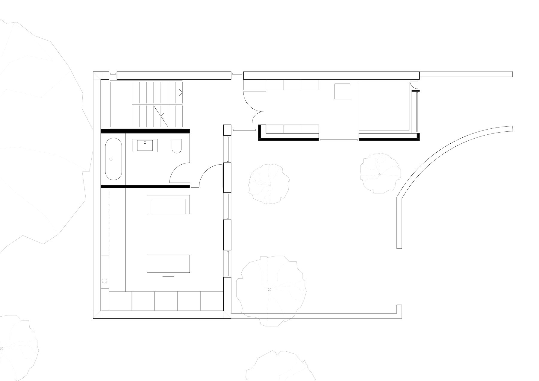
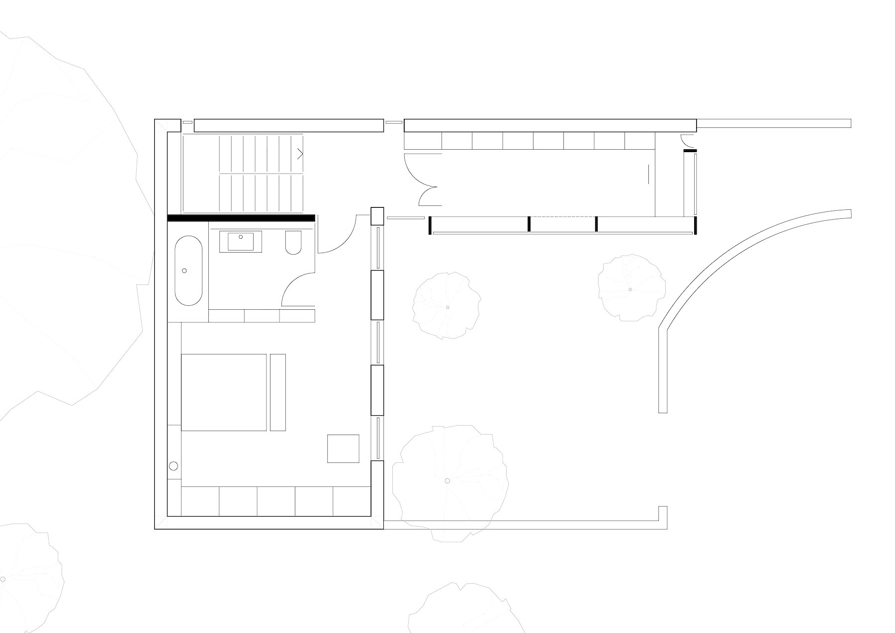
Das Haus R wurde mit einem Seitenflügel ergänzt, der die Architektur des Hauptgebäudes aus dem 19.Jahrhunderts erfolglos imitierte. Es ist aber nicht nur ein formales, sondern auch ein bauliches Scheitern, das folglich zum Anlass für einen Abbruch und Neubau wurde.
Mit der neuen baulichen Ergänzung wird auch das bestehende Gebäude so umstrukturiert, dass es nicht nur eine räumliche Verbindung zum Neubau bietet, sondern auch die neuen funktionalen Anforderungen des Raumprogrammes aufnehmen kann.














